WHAT

WHO

HOW MUCH

HOW

PROGRAM
FINANCING
ABSOLUTE DIMENSIONS
RELATIVE DIMENSIONS
DESIGN STRATEGY

SURFACE EXTENSION

SURFACE REDUCTION

VOLUME EXTENSION

VOLUME REDUCTION

STRUCTURE

MATERIAL

IMAGE

84 PROJECTS

Variation of modes of use: functions, users, schedules, etc.

Relationship between the ownership and the form of the investment that allows the transformation

Variation of the overall dimensions of the building

Proportional relationship between new spaces and existing spaces

Relationship between the structural adjustments and the existing structure

Relationship between the forms and types of pre-existing materials and those of the new intervention

Relationship between the image of the new and the image of the existing (mimesis / contrast)

LOCATION

Via Tempio Votivo, 31058 Susegana TV

ARCHITECTS / FIRM

Studio Architetti Associati Ricci e Val: Cecilia Ricci, Pierantonio Val. with E. Antoniol, N. Cardin, E. Marchesin, F. Petrera, F. Ronchese, E Vivian.

YEAR

2019

PierAntonio Val – Elementary school


PROJECT - Main Infos

PROJECT: PierAntonio Val – Elementary school

LOCATION: Via Tempio Votivo, 31058 Susegana TV

YEAR: 2019

ARCHITECT / FIRM: Studio Architetti Associati Ricci e Val: Cecilia Ricci, Pierantonio Val. with E. Antoniol, N. Cardin, E. Marchesin, F. Petrera, F. Ronchese, E Vivian.

BUYER: Susegana Municipality

SURFACE: 3.467 sqm

PRICE: € 3.150.000

DESCRIPTION:
The short road that branches off from Pontebbana, at the large roundabout to take to the train station, is undoubtedly one of the relevant morphogenetic elements of the Ponte della Priula town. The station, together with the bridge over the Piave and the large brick Votive Temple, designed by the architect Scattolin, are the strategic architectural elements that define the urban agglomeration and contribute to determining the civil character of the place. This short tree-lined avenue is also important for other reasons. The road section is i part of a longer driveway, which continues in a straight line even after the railway underpass, marking the landscape up to Tezze town. The toponym "via Colonna" is linked to historical reason to the Roman period. For this reason all the school equipment of the town was placed along this short road, forcing the collective and civil character of this route. The school's new project is an important opportunity to reinforce the urban character of this place in order to give greater identity and centrality to the sequence of urban spaces and to build a continuity between the architectures along the way: the church, the churchyard , the square, the system of school buildings, the station and the square in front of it. Precisely for this reason it was decided to concentrate the new volumes of the school complex along the border of the project area on the street front and towards the square, to build a continuous urban front. It was decided, however, to raise the building respect to the ground level, to increase its presence compared to the square, in relation to the monumental dimension of the Votive Temple and in relation to what is perceived by the Pontebbana street. At the same time on the ground is built a virtuous sequence of urban spaces used mainly by the school, but partly also by the community.

WHAT - Program


BALANCE BETWEEN CONSERVATION AND REPLACEMENT: The new program is in balance with the existing one.

DESCRIPTION:
The scolar use remains unchanged but the functional program is sensitively updated according to the modern educational requirements, different from what was expected in 1956. The gym building, built at the end of the 1970s, is maintained due to its good condition and because it satisfies to the anti-seismic regulations. The project relates closely to the new building through a series of ramps. A special attention is give to outdoor spaces, both open and covered, whose size is increased by 50% thanks to the fact that the building is raised on pilotis.

WHO - Financing


TOTAL CONSERVATION / CONTINUITY: The investor is the property owner.

DESCRIPTION:
The project cost € 3.150.000 and was financed for € 2.491.200 by the Municipality of susegana and € 658.800 for the Plan for structural and anti-seismic adaptation of school buildings in the Veneto region (DPCM implementing article 1, paragraph 160, of the law of 13 July 2015, n.107).

HOW MUCH - Absolute Dimensions

- SURFACE present EXTENSION,

BALANCE BETWEEN CONSERVATION AND REPLACEMENT: The overall dimensions are about twice the pre-existing surface.

- VOLUME present EXTENSION,

BALANCE BETWEEN CONSERVATION AND REPLACEMENT: The overall dimensions are about twice the pre-existing volume.

DESCRIPTION:
The classrooms are larger, common areas have been added and spaces for special education (computer room, multi-purpose classroom) have been introduced. The increase of the external area allowed to allocate a part of the school area under the portico for urban purposes, as a space for the community, in relation to the square and the churchyard of the nearby church.

HOW MUCH - Relative Dimensions


PREVALENT REPLACEMENT / DISCONTINUITY: The new spaces are prevalent with respect to the pre-existing spaces.

DESCRIPTION:
The old school built in the mid-1950s was demolished as it was uneconomical from a distribution point of view and due to seismic adjustment. This is why the new building was built in a different area in order to allow the existing school to be used during the construction phases.

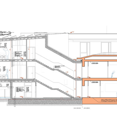
HOW - Design Strategy STRUCTURE


PREVALENT REPLACEMENT / DISCONTINUITY: The supporting structure is predominantly a new structure.

DESCRIPTION:
Particular attention was given to the structural aspects. The project uses a vertical steel structure, while the floors are in concrete (slab floors). In this way, a single steel pillar, constructed out of work, can be mounted on site to quickly implement the floors. This made possible to reduce construction time and costs. The slab floors allow larger dimensions and contribute to improving the internal distribution and the transparency of the ground floor. The construction on piloties makes the building suitable for hospitalization in case of emergency due to the presence of the Piave river.

HOW - Design Strategy MATERIAL


BALANCE BETWEEN CONSERVATION AND REPLACEMENT: The materials chosen for the new intervention balance similarities and differences with the existing ones.

DESCRIPTION:
The intention of the project is to relate the new and the old, also in terms of the choice of materials. An articulated system of brick walls, similar to those of the preexistence, extends from the existing enclosures of the rectory to continue and articulate under the suspended volume of the school and to contain the covered access areas (the hall and the stairs). The wall system continues beyond the building to give shape to the pedestrian ramp and to organize the system of green spaces. On the upper floors, the project builds a critical distance from the context using modern and technologically advanced materials (cellular concrete, rock wool insulation, aluminum windows and doors) to guarantee a class A3 as regards energy saving. The building is equipped with a photovoltaic and solar thermal system.

HOW - Design Strategy IMAGE


BALANCE BETWEEN CONSERVATION AND REPLACEMENT: The new intervention balances elements of continuity and discontinuity with respect to existing structures.

DESCRIPTION:
The new school building, standing on the border of the area, is articulated to build a series of virtuous relationships between the internal and external spaces. The aim is to root the project in the place and at the same time to maintain a critical distance that reinterprets and enhances the potential that the place offers. The project takes into account the presence of the Votive Temple (the church built in memory of the end of the First World War), its monumental character and the system of parochial works, both on the scalar level and on the level of organization of the spaces they define.